Urban Design
Goodwater
Saddlewood
Texas Stadium Site
Cottage Homes
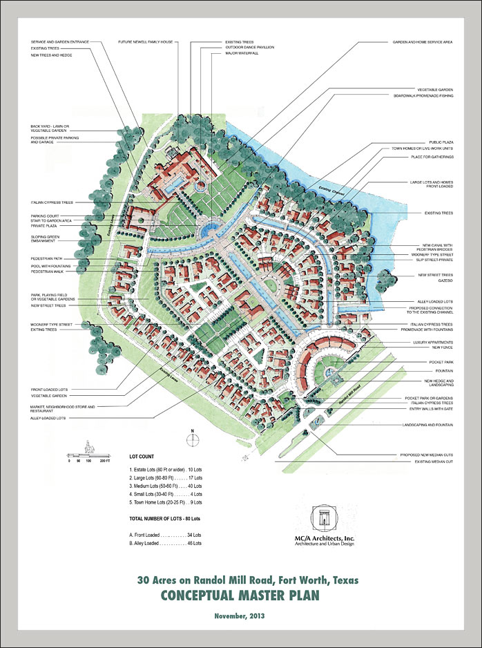
30 Acres
Trinity Lakes
Verano
Trophy Club
JFK Causeway
Oak Street
Owensboro
Duncanville Main Street
Jersey Village
Downtown McKinney
Kyle Town Center
Paul Young Ranch
Ranch at Brushy Creek
Regional Transit Center TOD
Terrace
Texas State University
Town Creek
Friday Mountain
VIA Primo BRT Station


